• Buy
  • Rent
  • Sell
  • Associates
  • About Us
  • Login
  • Register
  • 427 Convent Avenue
  • $ 2,450,000
427 Convent Avenue Hamilton Heights New York NY 10031
View All Photos
View Floor Plan
Schedule a Viewing

427 Convent Avenue

Hamilton Heights   |   West 148th Street & West 149th Street
Listing ID: 62080TH

  • $ 2,450,000
  • Bedrooms
  • Bathrooms
  • TownhouseBuilding Type
  • 2,688/250 Approx. SF/SM

  • Details
    • Income PropertyOwnership
    • $ 7,764Anual RE Taxes
    • 16'x54'Building Size
    • 16'x85'Lot Size
    • 1926Year Built
    • ActiveStatus

427 Convent Avenue Hamilton Heights New York NY 10031
  • Description
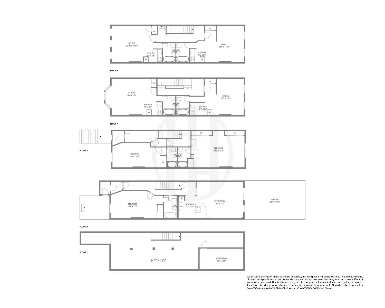
  • 5%+ Cap Rate! User/Purchaser or Investor Friendly Opportunity Welcome to the Sugar Hill Historic District of Hamilton Heights, a neighborhood filled with old growth trees and turn of the century townhouses sitting high above the valley of Central Harlem. Hamilton Heights is named after Alexander Hamilton, who built his home here. This is a neighborhood rich with history from jazz legends, the beautiful City College Campus and has 5 subway lines and 5 parks within a 10-minute walk of this 5-family townhouse. The house, built in 1926 and renovated in 2016, is fully leased with market rate rents. On the garden level and parlor floor is a 3-bedroom, 3 bath duplex with high ceilings and exclusive access to the approximately 425 sq ft. garden and W/D. This can be used as an owner’s duplex- presently rented month to month. On the 3rd and 4th Floor are 2 Studios per floor. Setup sheet available on request. The home has East and West Facing exposures that provide great natural light throughout the day and is located on a townhouse heavy section of the neighborhood- so even the garden level space gets great natural light not blocked by tall buildings. Low property taxes of just $647/month. Convent Avenue consists of mostly residential properties and the City College campus which limits vehicle traffic- so residents are treated to a much calmer, quieter and more desirable living experience. All new building systems (boiler, roof, meters, etc) were installed when the building was renovated in 2016 and well maintained since. The house is built 16’ x 54’ on a lot that is 16’x85’. Gross Square Footage is 3,456 including the garden level. Sugar Hill is Featured on the Harlem Stories Podcast!

    5%+ Cap Rate! User/Purchaser or Investor Friendly Opportunity Welcome to the Sugar Hill Historic District of Hamilton Heights, a neighborhood filled with old growth trees and turn of the century townhouses sitting high above the valley of Central Harlem. Hamilton Heights is named after Alexander Hamilton, who built his home here. This is a neighborhood rich with history from jazz legends, the beautiful City College Campus and has 5 subway lines and 5 parks within a 10-minute walk of this 5-family townhouse. The house, built in 1926 and renovated in 2016, is fully leased with market rate rents. On the garden level and parlor floor is a 3-bedroom, 3 bath duplex with high ceilings and exclusive access to the approximately 425 sq ft. garden and W/D. This can be used as an owner’s duplex- presently rented month to month. On the 3rd and 4th Floor are 2 Studios per floor. Setup sheet available on request. The home has East and West Facing exposures that provide great natural light throughout the day and is located on a townhouse heavy section of the neighborhood- so even the garden level space gets great natural light not blocked by tall buildings. Low property taxes of just $647/month. Convent Avenue consists of mostly residential properties and the City College campus which limits vehicle traffic- so residents are treated to a much calmer, quieter and more desirable living experience. All new building systems (boiler, roof, meters, etc) were installed when the building was renovated in 2016 and well maintained since. The house is built 16’ x 54’ on a lot that is 16’x85’. Gross Square Footage is 3,456 including the garden level. Sugar Hill is Featured on the Harlem Stories Podcast!

    Listing Courtesy of Elegran LLC
  • Contact
  • Matthew Coleman

    License

    Licensed Broker - President

    W: 212-677-4040
    M: 917-494-7209
    • Email Me
    • Download Contact

  • View more details +

  • Features
    • A/C

  • Close details -
  • Contact
  • Matthew Coleman

    License

    Licensed Broker - President

    W: 212-677-4040
    M: 917-494-7209
    • Email Me
    • Download Contact

  • Mortgage Calculator
  • $
    %
    $
    %

    Loan Amount


This information is not verified for authenticity or accuracy and is not guaranteed and may not reflect all real estate activity in the market. ©2025 REBNY Listing Service, Inc. All rights reserved. Additional building data provided by On-Line Residential [OLR].
All information furnished regarding property for sale, rental or financing is from sources deemed reliable, but no warranty or representation is made as to the accuracy thereof and same is submitted subject to errors, omissions, change of price, rental or other conditions, prior sale, lease or financing or withdrawal without notice. All dimensions are approximate. For exact dimensions, you must hire your own architect or engineer.
  • Buy
  • Rent
  • Sell
  • Associates
  • About Us

© 2025 by Coleman Real Estate.  All Rights Reserved | Privacy Policy | Legal | Fair Housing Policy
31 East 12th Street, New York, NY 10003
Tel: 212.677.4040 | Fax: 212.677.4041 | info@colemanrealestate.com
© 2025 by Coleman Real Estate.  All Rights Reserved
31 East 12th Street, New York, NY 10003
Tel: 212.677.4040
Fax: 212.677.4041
info@colemanrealestate.com

Privacy Policy
Legal
Fair Housing Policy
Built With OLR
T01.50.0.0 | Core: 50.0.0
31 East 12th Street, New York, NY 10003
T:   212.677.4040   |   Email:   info@colemanrealestate.com
T01.50.0.0 | Core: 50.0.0