• Buy
  • Rent
  • Sell
  • Associates
  • About Us
  • Login
  • Register
  • 3-22 Seaside Avenue
  • $ 799,000
3-22 Seaside Avenue Seaside Queens NY 11694
View All Photos
View Floor Plan
Schedule a Viewing

3-22 Seaside Avenue

Seaside   |   Rockaway Freeway & Beach Channel Drive
Listing ID: 105622TH

  • $ 799,000
  • Bedrooms
  • Bathrooms
  • HouseBuilding Type
  • 2,000/186 Approx. SF/SM

  • Details
    • Single FamilyOwnership
    • $ 5,556Anual RE Taxes
    • 18'x37'Building Size
    • 26'x92'Lot Size
    • 2002Year Built
    • ActiveStatus

3-22 Seaside Avenue Seaside Queens NY 11694
  • Description
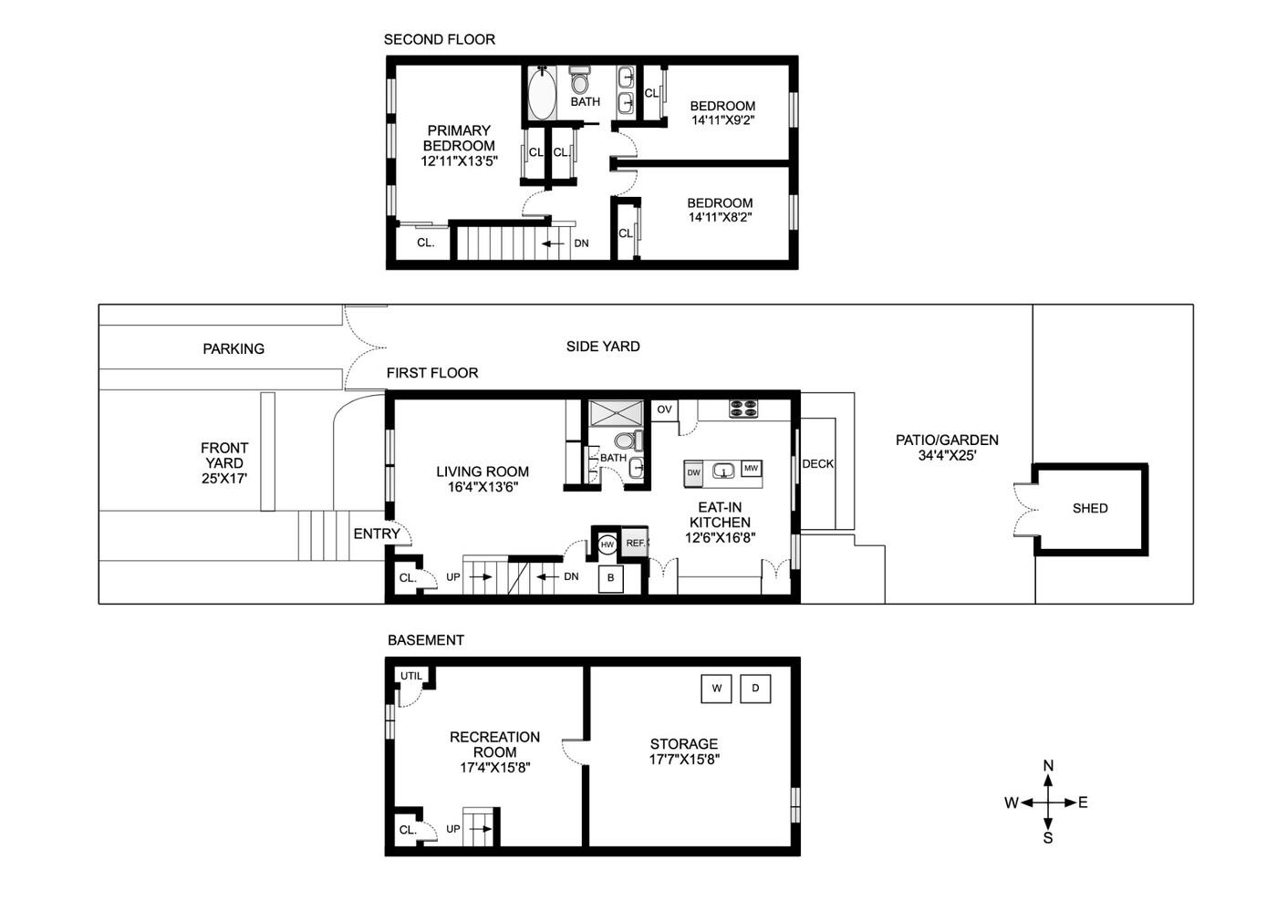
  • Welcome to 322 Seaside Avenue, a beautifully renovated three-bedroom, two-bathroom home featuring a spacious backyard, finished basement, and private parking in prime Rockaway Beach!

    Meticulously renovated from top to bottom, this home features contemporary finishes while optimizing every living space. An inviting first impression welcomes you as you step inside. The generous living room boasts hardwood floors, two large windows that flood the space with natural light, and a full wall of custom-built-in bookcase with hidden storage. The eat-in kitchen has been fully renovated and modernized, highlighting a large central island, elegant cabinetry, stainless steel appliances-including a dishwasher and an in-drawer microwave-and various custom storage solutions. Spacious enough to accommodate a sizable dining table, this area is ideal for entertaining guests. A sliding glass door opens to a large private backyard, featuring a patio for outdoor dining and a grass area for leisure activities. A large shed provides additional storage, and there is convenient access to the front of the home from the yard. Additionally, the first floor includes a renovated full bathroom and extra custom storage space.

    Upstairs, the second floor offers three generously sized bedrooms, each with ample closet space and oversized windows. A second fully renovated bathroom with a bathtub, double sinks, and a large hall closet completes this level. The fully finished basement is divided into a spacious recreational room and a utility area for storage, equipped with a washer and dryer. This home also offers central air and updated mechanicals.

    322 Seaside Avenue blends comfort and style effortlessly, all while offering easy access to Rockaway Beach.

    Welcome to 322 Seaside Avenue, a beautifully renovated three-bedroom, two-bathroom home featuring a spacious backyard, finished basement, and private parking in prime Rockaway Beach!

    Meticulously renovated from top to bottom, this home features contemporary finishes while optimizing every living space. An inviting first impression welcomes you as you step inside. The generous living room boasts hardwood floors, two large windows that flood the space with natural light, and a full wall of custom-built-in bookcase with hidden storage. The eat-in kitchen has been fully renovated and modernized, highlighting a large central island, elegant cabinetry, stainless steel appliances-including a dishwasher and an in-drawer microwave-and various custom storage solutions. Spacious enough to accommodate a sizable dining table, this area is ideal for entertaining guests. A sliding glass door opens to a large private backyard, featuring a patio for outdoor dining and a grass area for leisure activities. A large shed provides additional storage, and there is convenient access to the front of the home from the yard. Additionally, the first floor includes a renovated full bathroom and extra custom storage space.

    Upstairs, the second floor offers three generously sized bedrooms, each with ample closet space and oversized windows. A second fully renovated bathroom with a bathtub, double sinks, and a large hall closet completes this level. The fully finished basement is divided into a spacious recreational room and a utility area for storage, equipped with a washer and dryer. This home also offers central air and updated mechanicals.

    322 Seaside Avenue blends comfort and style effortlessly, all while offering easy access to Rockaway Beach.


    Listing Courtesy of Corcoran Group
  • Contact
  • Matthew Coleman

    License

    Licensed Broker - President

    W: 212-677-4040
    M: 917-494-7209
    • Email Me
    • Download Contact

  • View more details +

  • Features
    • A/C [Central]

  • Close details -
  • Contact
  • Matthew Coleman

    License

    Licensed Broker - President

    W: 212-677-4040
    M: 917-494-7209
    • Email Me
    • Download Contact

  • Mortgage Calculator
  • $
    %
    $
    %

    Loan Amount


This information is not verified for authenticity or accuracy and is not guaranteed and may not reflect all real estate activity in the market. ©2026 REBNY Listing Service, Inc. All rights reserved. Additional building data provided by On-Line Residential [OLR].
All information furnished regarding property for sale, rental or financing is from sources deemed reliable, but no warranty or representation is made as to the accuracy thereof and same is submitted subject to errors, omissions, change of price, rental or other conditions, prior sale, lease or financing or withdrawal without notice. All dimensions are approximate. For exact dimensions, you must hire your own architect or engineer.
  • Buy
  • Rent
  • Sell
  • Associates
  • About Us

© 2026 by Coleman Real Estate.  All Rights Reserved | Privacy Policy | Legal | Fair Housing Policy
31 East 12th Street, New York, NY 10003
Tel: 212.677.4040 | Fax: 212.677.4041 | info@colemanrealestate.com
© 2026 by Coleman Real Estate.  All Rights Reserved
31 East 12th Street, New York, NY 10003
Tel: 212.677.4040
Fax: 212.677.4041
info@colemanrealestate.com

Privacy Policy
Legal
Fair Housing Policy
Built With OLR
T01.50.0.0 | Core: 50.0.0
31 East 12th Street, New York, NY 10003
T:   212.677.4040   |   Email:   info@colemanrealestate.com
T01.50.0.0 | Core: 50.0.0