• Buy
  • Rent
  • Sell
  • Associates
  • About Us
  • Login
  • Register
  • 360 Furman Street, 306
  • 4 Rooms
  • 1 Beds
  • 1 Baths
  • $ 950,000
360 Furman Street Brooklyn Heights Brooklyn NY 11201
View All Photos
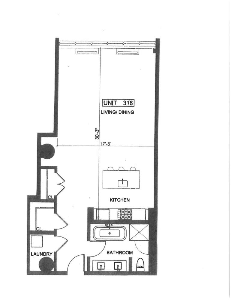
View Floor Plan
Schedule a Viewing

One Brooklyn Bridge Park

360 Furman Street, 306

Brooklyn Heights   |   State Street & Atlantic Avenue
Listing ID: 467807

  • $ 950,000
  • 1 Bedrooms
  • 1 Bathrooms
  • 782/73 Approx. SF/SM
  • 80%Financing Allowed

  • Details
  • CondoOwnership
  • $ 1,050Common Charges
  • $ 755Real Estate Taxes
  • ActiveStatus

360 Furman Street Brooklyn Heights Brooklyn NY 11201
  • Description
  • Welcome to 360 Furman Street Unit #306, a one bedroom apartment which also has a storage cage on the same floor. The apartment measures approximately 782 square feet, has 13' high ceilings with giant wall to wall windows.
    Enjoy the eastern light and the peace and quiet of Citiquiet windows. OBB, a converted warehouse LOFT building
    was originally built in 1928 and converted to condominiums in 2008. #306 has a lovely entryway leading to the kitchen and open living room. The upscale kitchen has a large granite marble top which easily fits bar stools. The exquisite custom cabinetry is by Dada and a SubZero refrigerator, gas cooktop which is vented out. There is a washer/dryer closet in the apartment. The large bedroom also has large windows letting light into the space. Presently there is a queen size bed. Gorgeous solid oak floors, Your have your own storage cage approximately 29 s/f & 12 foot high ceilings on the same floor. OBB is surrounded by OBBP an 85 acre park which stretches 1.3 miles along the water. The park provides playing fields, sport courts, playgrounds, kayaking and canoeing. One Brooklyn Bridge features a 3,000 s/f gym, a Yoga studio, cardio room, 9-seat Screening room, A music room with a Baby Grand Piano, and a set of drums, two play rooms, a billiards room, numerous meeting rooms, a golf simulator room & an outdoor putting green. One Brooklyn has a great staff of doormen, porters, & a concierge ready to assist you. There is a resident manager. NY Waterway Ferry to Wall Street and numerous other destinations. Parking available to purchase or rent.
    There is no other place like it. Come see for yourself.

    Welcome to 360 Furman Street Unit #306, a one bedroom apartment which also has a storage cage on the same floor. The apartment measures approximately 782 square feet, has 13' high ceilings with giant wall to wall windows.
    Enjoy the eastern light and the peace and quiet of Citiquiet windows. OBB, a converted warehouse LOFT building
    was originally built in 1928 and converted to condominiums in 2008. #306 has a lovely entryway leading to the kitchen and open living room. The upscale kitchen has a large granite marble top which easily fits bar stools. The exquisite custom cabinetry is by Dada and a SubZero refrigerator, gas cooktop which is vented out. There is a washer/dryer closet in the apartment. The large bedroom also has large windows letting light into the space. Presently there is a queen size bed. Gorgeous solid oak floors, Your have your own storage cage approximately 29 s/f & 12 foot high ceilings on the same floor. OBB is surrounded by OBBP an 85 acre park which stretches 1.3 miles along the water. The park provides playing fields, sport courts, playgrounds, kayaking and canoeing. One Brooklyn Bridge features a 3,000 s/f gym, a Yoga studio, cardio room, 9-seat Screening room, A music room with a Baby Grand Piano, and a set of drums, two play rooms, a billiards room, numerous meeting rooms, a golf simulator room & an outdoor putting green. One Brooklyn has a great staff of doormen, porters, & a concierge ready to assist you. There is a resident manager. NY Waterway Ferry to Wall Street and numerous other destinations. Parking available to purchase or rent.
    There is no other place like it. Come see for yourself.

    Listing Courtesy of Corcoran Group
  • Contact
  • Matthew Coleman

    License

    Licensed Broker - President

    W: 212-677-4040
    M: 917-494-7209
    • Email Me
    • Download Contact

  • View more details +

  • Features
    • A/C
    • Washer / Dryer

  • View / Exposure
    • East Exposure

  • Close details -
  • Contact
  • Matthew Coleman

    License

    Licensed Broker - President

    W: 212-677-4040
    M: 917-494-7209
    • Email Me
    • Download Contact

  • Mortgage Calculator
  • $
    %
    $
    %

    Loan Amount


This information is not verified for authenticity or accuracy and is not guaranteed and may not reflect all real estate activity in the market. ©2026 REBNY Listing Service, Inc. All rights reserved. Additional building data provided by On-Line Residential [OLR].
All information furnished regarding property for sale, rental or financing is from sources deemed reliable, but no warranty or representation is made as to the accuracy thereof and same is submitted subject to errors, omissions, change of price, rental or other conditions, prior sale, lease or financing or withdrawal without notice. All dimensions are approximate. For exact dimensions, you must hire your own architect or engineer.
  • Buy
  • Rent
  • Sell
  • Associates
  • About Us

© 2026 by Coleman Real Estate.  All Rights Reserved | Privacy Policy | Legal | Fair Housing Policy
31 East 12th Street, New York, NY 10003
Tel: 212.677.4040 | Fax: 212.677.4041 | info@colemanrealestate.com
© 2026 by Coleman Real Estate.  All Rights Reserved
31 East 12th Street, New York, NY 10003
Tel: 212.677.4040
Fax: 212.677.4041
info@colemanrealestate.com

Privacy Policy
Legal
Fair Housing Policy
Built With OLR
T01.50.0.0 | Core: 50.0.0
31 East 12th Street, New York, NY 10003
T:   212.677.4040   |   Email:   info@colemanrealestate.com
T01.50.0.0 | Core: 50.0.0