• Buy
  • Rent
  • Sell
  • Associates
  • About Us
  • Login
  • Register
  • 1485 Fifth Avenue, 13A
  • 6 Rooms
  • 3 Beds
  • 2 Baths
  • $ 1,600,000
1485 Fifth Avenue East Harlem New York NY 10035
View All Photos
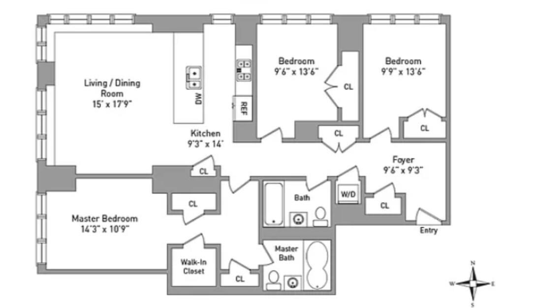
View Floor Plan
Schedule a Viewing

5th on the Park

1485 Fifth Avenue, 13A

East Harlem   |   East 119th Street & East 120th Street
Listing ID: 424061

  • $ 1,600,000
  • 3 Bedrooms
  • 2 Bathrooms
  • 1,436/133 Approx. SF/SM
  • 90%Financing Allowed

  • Details
  • CondoOwnership
  • $ 1,485Common Charges
  • $ 15Real Estate Taxes
  • ActiveStatus

1485 Fifth Avenue East Harlem New York NY 10035
  • Description
  •  

    Sophisticated Urban Oasis at 5th on the Park Condominium:

    Discover unparalleled luxury in this exquisite three-bedroom, two-bathroom residence at the prestigious 5th on the Park Condominium. A gracious entry foyer welcomes you, leading past two queen-sized bedrooms and a sleek hall bath, into an expansive open kitchen. Culinary enthusiasts will appreciate the stainless-steel appliances, custom cabinetry, and convenient built-in washer/dryer. Both bathrooms are appointed with modern fixtures and recessed medicine cabinets. Floor-to-ceiling windows bathe every room in incredible natural light, enhancing the high ceilings and elegant hardwood floors throughout. The master bedroom suite offers generous proportions and two large, floor-to-ceiling closets, complemented by ample additional storage. Enjoy ultimate comfort with smart thermostats providing remote climate control, and designer blinds with blackout shades in all bedrooms ensuring privacy and tranquility.

    Perched above, this apartment boasts expansive north and western views of Harlem's landmarked buildings, charming brownstones, and the lush greenery of Mount Morris Park. With no obstructing high-rises, your privacy is perfectly preserved. This section of Fifth Avenue offers a rare blend of quaint serenity and urban accessibility, providing a peaceful retreat just moments from major transportation hubs and renowned dining destinations.

    Indulge in a world-class amenity suite, all at no charge: A 55" indoor heated pool with sun deck, state-of-the-art fitness room with free Wi-Fi, a vibrant community sundeck and lounge (featuring a catering kitchen, entertainment system, and landscaped outdoor space with spice gardens and gas grills), and a dedicated children's playroom. Practical conveniences include cold storage for perishables and a highly attentive 24/7 attended lobby with doorman, concierge, and live-in management, ensuring impeccable service from the moment you arrive. On-site valet parking (24/7 car and motorbike garage with building access) is available, along with a bicycle room (nominal charge, waiting list). Perfectly situated on Fifth Avenue between 119th and 120th Street, adjacent to Marcus Garvey Park, you're just blocks from Whole Foods, Settapani, Red Rooster, Shake Shack, Bed Bath & Beyond, and major subway lines (4,5,6 at 125th/116th Lex, and 2,3 at 116th Lenox).

     

     

    Sophisticated Urban Oasis at 5th on the Park Condominium:

    Discover unparalleled luxury in this exquisite three-bedroom, two-bathroom residence at the prestigious 5th on the Park Condominium. A gracious entry foyer welcomes you, leading past two queen-sized bedrooms and a sleek hall bath, into an expansive open kitchen. Culinary enthusiasts will appreciate the stainless-steel appliances, custom cabinetry, and convenient built-in washer/dryer. Both bathrooms are appointed with modern fixtures and recessed medicine cabinets. Floor-to-ceiling windows bathe every room in incredible natural light, enhancing the high ceilings and elegant hardwood floors throughout. The master bedroom suite offers generous proportions and two large, floor-to-ceiling closets, complemented by ample additional storage. Enjoy ultimate comfort with smart thermostats providing remote climate control, and designer blinds with blackout shades in all bedrooms ensuring privacy and tranquility.

    Perched above, this apartment boasts expansive north and western views of Harlem's landmarked buildings, charming brownstones, and the lush greenery of Mount Morris Park. With no obstructing high-rises, your privacy is perfectly preserved. This section of Fifth Avenue offers a rare blend of quaint serenity and urban accessibility, providing a peaceful retreat just moments from major transportation hubs and renowned dining destinations.

    Indulge in a world-class amenity suite, all at no charge: A 55" indoor heated pool with sun deck, state-of-the-art fitness room with free Wi-Fi, a vibrant community sundeck and lounge (featuring a catering kitchen, entertainment system, and landscaped outdoor space with spice gardens and gas grills), and a dedicated children's playroom. Practical conveniences include cold storage for perishables and a highly attentive 24/7 attended lobby with doorman, concierge, and live-in management, ensuring impeccable service from the moment you arrive. On-site valet parking (24/7 car and motorbike garage with building access) is available, along with a bicycle room (nominal charge, waiting list). Perfectly situated on Fifth Avenue between 119th and 120th Street, adjacent to Marcus Garvey Park, you're just blocks from Whole Foods, Settapani, Red Rooster, Shake Shack, Bed Bath & Beyond, and major subway lines (4,5,6 at 125th/116th Lex, and 2,3 at 116th Lenox).

     


    Listing Courtesy of CHERYL RODRIGUES REAL ESTATE LLC
  • Contact
  • Matthew Coleman

    License

    Licensed Broker - President

    W: 212-677-4040
    M: 917-494-7209
    • Email Me
    • Download Contact

  • View more details +

  • Features
    • A/C
    • Washer / Dryer

  • View / Exposure
    • City Views
    • North, West Exposures

  • Close details -
  • Contact
  • Matthew Coleman

    License

    Licensed Broker - President

    W: 212-677-4040
    M: 917-494-7209
    • Email Me
    • Download Contact

  • Mortgage Calculator
  • $
    %
    $
    %

    Loan Amount


This information is not verified for authenticity or accuracy and is not guaranteed and may not reflect all real estate activity in the market. ©2026 REBNY Listing Service, Inc. All rights reserved. Additional building data provided by On-Line Residential [OLR].
All information furnished regarding property for sale, rental or financing is from sources deemed reliable, but no warranty or representation is made as to the accuracy thereof and same is submitted subject to errors, omissions, change of price, rental or other conditions, prior sale, lease or financing or withdrawal without notice. All dimensions are approximate. For exact dimensions, you must hire your own architect or engineer.
  • Buy
  • Rent
  • Sell
  • Associates
  • About Us

© 2026 by Coleman Real Estate.  All Rights Reserved | Privacy Policy | Legal | Fair Housing Policy
31 East 12th Street, New York, NY 10003
Tel: 212.677.4040 | Fax: 212.677.4041 | info@colemanrealestate.com
© 2026 by Coleman Real Estate.  All Rights Reserved
31 East 12th Street, New York, NY 10003
Tel: 212.677.4040
Fax: 212.677.4041
info@colemanrealestate.com

Privacy Policy
Legal
Fair Housing Policy
Built With OLR
T01.50.0.0 | Core: 50.0.0
31 East 12th Street, New York, NY 10003
T:   212.677.4040   |   Email:   info@colemanrealestate.com
T01.50.0.0 | Core: 50.0.0