• Buy
  • Rent
  • Sell
  • Associates
  • About Us
  • Login
  • Register
  • 447 West 18th Street, 7A
  • 6 Rooms
  • 2 Beds
  • 2 Baths
  • $ 2,450,000
447 West 18th Street Chelsea New York NY 10011
View All Photos
View Floor Plan
Schedule a Viewing

Chelsea Modern

447 West 18th Street, 7A

Chelsea   |   Ninth Avenue & Tenth Avenue
Listing ID: 426455

  • $ 2,450,000
  • 2 Bedrooms
  • 2 Bathrooms
  • 1,441/134 Approx. SF/SM
  • 90%Financing Allowed

  • Details
  • CondoOwnership
  • $ 1,631Common Charges
  • $ 2,860Real Estate Taxes
  • ActiveStatus

447 West 18th Street Chelsea New York NY 10011
  • Description
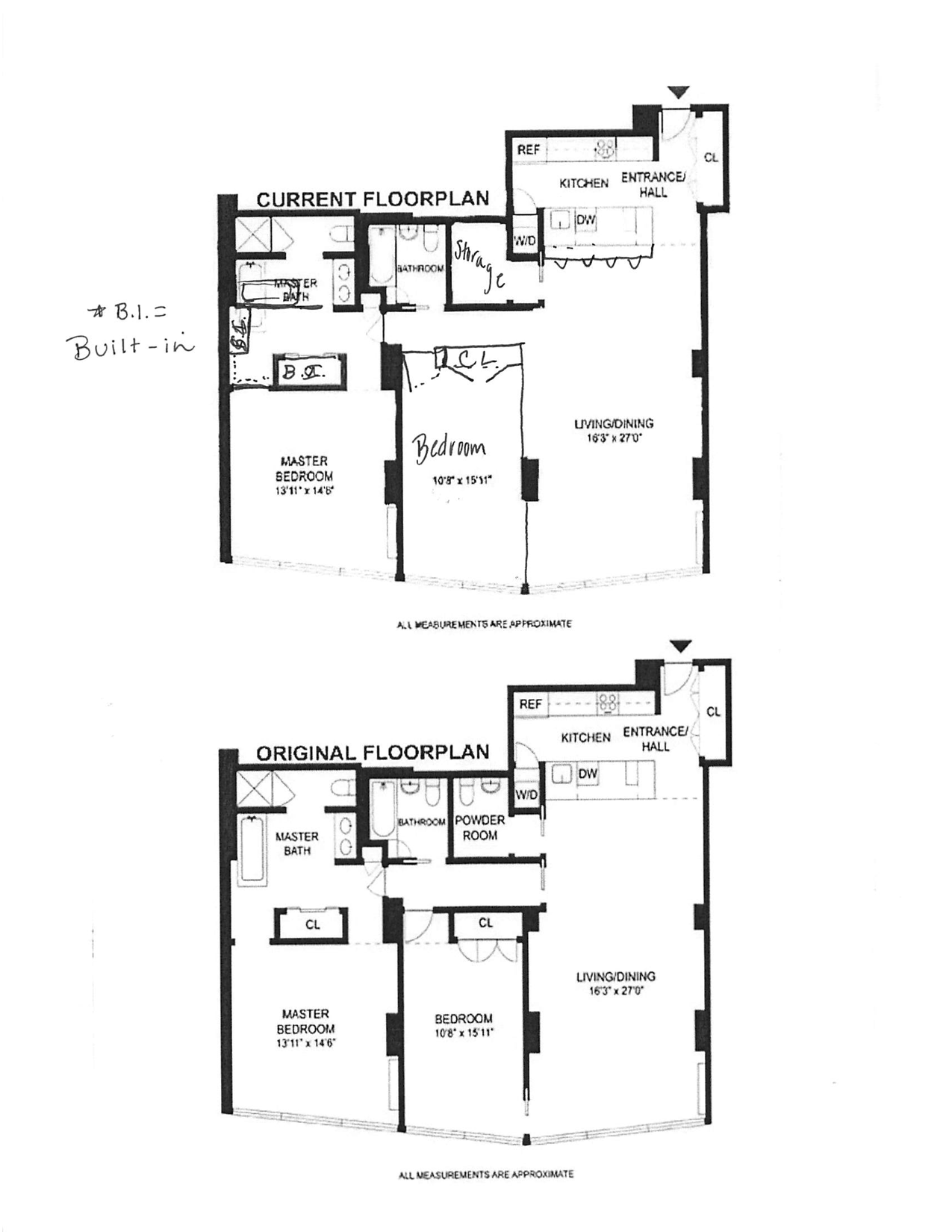
  • Expansive, Sunlit Two-Bedroom in Chelsea Modern Welcome to this bright and airy south-facing two-bedroom residence at Chelsea Modern, an award-winning boutique condominium situated in the heart of the West Chelsea Arts District. With soaring ceilings, abundant natural light, and oversized walk-in closets, this home offers a refined blend of luxury and functionality. The open-concept living and dining areas are anchored by a chef’s kitchen featuring snow white quartzite countertops, a generous breakfast bar, sleek stainless steel and glass cabinetry, terrazzo flooring, a walk-in pantry, and top-of-the-line appliances by Sub-Zero, Viking, and Samsung, including a six-burner vented gas range, wine fridge, and custom rolling wine rack. The expansive primary suite includes custom closets and a spa-inspired en suite bath, outfitted with Philippe Starck and Duravit fixtures, a freestanding soaking tub, dual-sink marble vanity, and a frameless glass rain shower. A second full bathroom is equally well-appointed. Throughout the home, limestone flooring adds warmth and elegance. Originally designed with an additional powder room, the layout currently includes a large storage room near the kitchen, which can easily be converted back if desired. Residents of Chelsea Modern enjoy full-service amenities, including: * 24-hour doorman and concierge * Fitness center * Resident storage, bike room, and cold storage * A tranquil courtyard garden * Landscaped roof deck with grilling area, Empire State Building views, and stunning Hudson River sunsets Completed in 2009, the building features just 27 residences over 12 floors and is a striking example of contemporary architecture by Audrey Matlock. Ideally located near the High Line, Chelsea Market, Hudson River Park, and Meatpacking District, the building is also just minutes from the Google Chelsea campus. Note: Tenant in place. Showings require 24-hour notice. Current lease expires May 31, 2026.

    Expansive, Sunlit Two-Bedroom in Chelsea Modern Welcome to this bright and airy south-facing two-bedroom residence at Chelsea Modern, an award-winning boutique condominium situated in the heart of the West Chelsea Arts District. With soaring ceilings, abundant natural light, and oversized walk-in closets, this home offers a refined blend of luxury and functionality. The open-concept living and dining areas are anchored by a chef’s kitchen featuring snow white quartzite countertops, a generous breakfast bar, sleek stainless steel and glass cabinetry, terrazzo flooring, a walk-in pantry, and top-of-the-line appliances by Sub-Zero, Viking, and Samsung, including a six-burner vented gas range, wine fridge, and custom rolling wine rack. The expansive primary suite includes custom closets and a spa-inspired en suite bath, outfitted with Philippe Starck and Duravit fixtures, a freestanding soaking tub, dual-sink marble vanity, and a frameless glass rain shower. A second full bathroom is equally well-appointed. Throughout the home, limestone flooring adds warmth and elegance. Originally designed with an additional powder room, the layout currently includes a large storage room near the kitchen, which can easily be converted back if desired. Residents of Chelsea Modern enjoy full-service amenities, including: * 24-hour doorman and concierge * Fitness center * Resident storage, bike room, and cold storage * A tranquil courtyard garden * Landscaped roof deck with grilling area, Empire State Building views, and stunning Hudson River sunsets Completed in 2009, the building features just 27 residences over 12 floors and is a striking example of contemporary architecture by Audrey Matlock. Ideally located near the High Line, Chelsea Market, Hudson River Park, and Meatpacking District, the building is also just minutes from the Google Chelsea campus. Note: Tenant in place. Showings require 24-hour notice. Current lease expires May 31, 2026.

    Listing Courtesy of Compass
  • Contact
  • Matthew Coleman

    License

    Licensed Broker - President

    W: 212-677-4040
    M: 917-494-7209
    • Email Me
    • Download Contact

  • View more details +

  • Features
    • A/C [Central]
    • Washer / Dryer
    • Washer / Dryer Hookups

  • View / Exposure
    • South Exposure

  • Close details -
  • Contact
  • Matthew Coleman

    License

    Licensed Broker - President

    W: 212-677-4040
    M: 917-494-7209
    • Email Me
    • Download Contact

  • Mortgage Calculator
  • $
    %
    $
    %

    Loan Amount


This information is not verified for authenticity or accuracy and is not guaranteed and may not reflect all real estate activity in the market. ©2025 REBNY Listing Service, Inc. All rights reserved. Additional building data provided by On-Line Residential [OLR].
All information furnished regarding property for sale, rental or financing is from sources deemed reliable, but no warranty or representation is made as to the accuracy thereof and same is submitted subject to errors, omissions, change of price, rental or other conditions, prior sale, lease or financing or withdrawal without notice. All dimensions are approximate. For exact dimensions, you must hire your own architect or engineer.
  • Buy
  • Rent
  • Sell
  • Associates
  • About Us

© 2025 by Coleman Real Estate.  All Rights Reserved | Privacy Policy | Legal | Fair Housing Policy
31 East 12th Street, New York, NY 10003
Tel: 212.677.4040 | Fax: 212.677.4041 | info@colemanrealestate.com
© 2025 by Coleman Real Estate.  All Rights Reserved
31 East 12th Street, New York, NY 10003
Tel: 212.677.4040
Fax: 212.677.4041
info@colemanrealestate.com

Privacy Policy
Legal
Fair Housing Policy
Built With OLR
T01.50.0.0 | Core: 50.0.0
31 East 12th Street, New York, NY 10003
T:   212.677.4040   |   Email:   info@colemanrealestate.com
T01.50.0.0 | Core: 50.0.0